Bilocale in vendita

Bareggio, Appartamento via IV Novembre
€ 148.000
2 locali 2 locali
50 Mq 50 Mq
1 bagno 1 bagno

Bilocale in vendita

Bareggio, Appartamento via IV Novembre

Descrizione annuncio

2 LOCALI SENZA SPESE CONDOMINIALI FULL ELECTRIC

L’appartamento è in fase di costruzione e la consegna è prevista per la primavera 2026.

La casa occupa il primo ed ultimo piano ed è ideale per chi cerca una soluzione semi-indipendente e senza spese di gestione.

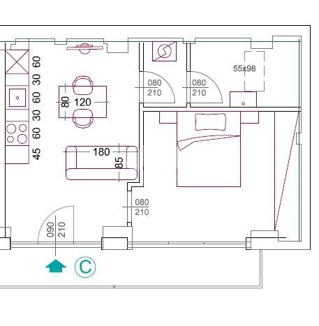
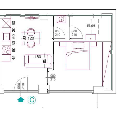
Entrando nell’appartamento veniamo accolti da un luminoso soggiorno fornito da cucina a vista, poi segue la camera da letto ed il bagno finestrato.

Inoltre sarà dotato di: pompe di calore in ogni locale, boiler elettrico per acqua calda, enorme vetrata a mezza luna sia sulla zona notte sia sulla zona giorno.

Possibilità di scegliere ancora il capitolato.

Completa il tutto il box e la cantina.

Vi è anche la possibilità di acquistare un secondo box, sotto le abitazioni.

Costruzione realizzata in Classe energetica – A -, nel rispetto delle normative vigenti in materia di risparmio energetico.

La soluzione sorge in una tipica corte lombarda ubicata a pochi metri dalla piazza del paese, fornita da citofono e da cancello. A piedi, si possono raggiungere i principali servizi, come i negozi, le scuole, l’oratorio San Luigi e le fermate dei mezzi pubblici per e da Milano.

Per appuntamenti i nostri incaricati sono disponibili dal lunedì al venerdì dalle ore 9.30 alle 12.30 e dalle 14.30 alle 20.00 e il sabato dalle 9.00 alle 12.30 e dalle 14:30 alle 18:00. A vostra disposizione uno staff di consulenza creditizia in grado di proporvi il mutuo o il finanziamento più adatto alle vostre possibilità. Contattateci per fissare un incontro gratuito nei nostri uffici. Ogni agenzia ha un proprio titolare ed è autonoma.

Mostra tutto

Nelle vicinanze

Trasporto pubblico Trasporto pubblico
Via Roma - Corso Italia (Bareggio)
Via Roma - Corso Italia (Bareggio)
320 m
Via Madonna Pellegrina (Bareggio)
Via Madonna Pellegrina (Bareggio)
530 m
Ricariche auto elettriche Ricariche auto elettriche
Cornaredo Vittorio Veneto | EnelX
1,9 Km
Lidl Cornaredo
2,4 Km
Eneldrive McDonald's Sedriano
2,4 Km
Cornaredo Colombo | EnelX
2,5 Km
Centro Sportivo Comunale "S.Pertini" | EnelX
2,7 Km
Scuole Scuole
Scuola elementare istituto Luigi Perlasca
480 m
Scuole
1,6 Km
Scuola Media Ludovico Muratori
2,6 Km
Farmacia Farmacia
Farmacia Caiezza
400 m
Farmacia europea
760 m
Farmacia San Martino
1,4 Km
Farmacia
1,9 Km
Comunale
2,5 Km
Supermercati Supermercati
Carrefour Market
580 m
Sigma
1,3 Km
COOP
1,3 Km
Penny Market
1,3 Km
Euro Spin
1,4 Km
Negozi Negozi
Nove Mesi
1,2 Km
Mauro il Fornaio
1,3 Km
Panipast
1,4 Km
Negozi
1,5 Km
Giry
1,6 Km
Bar Bar
Locanda rose wather
280 m
ChocoLù Bar
1,1 Km
La Piazzetta
1,2 Km
El Merendero
1,8 Km
Garden Bar
2,4 Km
Ristoranti Ristoranti
pinseria
70 m
Ristorante Lampedusa
710 m
Ristoranti
1,2 Km
La Padellaccia
1,2 Km
Rainbow
1,2 Km
Mostra tutto

Caratteristiche

Rif.:
61163228
Piano:
1 di 1 (Piano alto)
Box:
1
Camere da letto:
1
Arredamento:
Assente
Condizionamento:
Autonomo
Mostra tutto
Prezzo Prezzo
€ 148.000
Rata mutuo Rata mutuo
€ 687 / mese
Spese annue Spese annue
€ 0
Proponi il tuo prezzoProponi il tuo prezzo

Classe Energetica

A2
A2
A2
A2
A2
A2
A2
A2
A2
EP invernale del fabbricato:
EP estiva del fabbricato:
Anno di costruzione:
2025
Riscaldamento:
Autonomo
Tipo impianto:
Ad aria
Tipo alimentazione:
Aria

Ti interessa visionare l'immobile?

Fissa un appuntamento  Fissa un appuntamento

Richiedi informazioni

Clicca su Leggi per aprire l'informativa
* Questi campi sono obbligatori

Calcola il tuo mutuo

Semplice e senza impegno
Anticipo

( % )
Mutuo

( % )

pochi semplici passi

inserisci i tuoi dati
Questionario completato
Grazie per aver richiesto un appuntamento senza impegno con un nostro Consulente del Credito e Assicurativo.

Hai inserito correttamente tutti i dati necessari e a breve riceverai una e-mail con un link da convalidare per inviare i tuoi dati.
Affiliato
Elide Srl
Via Manzoni, 29 20010 Bareggio (MI)

Il nostro staff


  • Michele Cunzolo
    Affiliato

  • Rosa Anna Liotta
    Coordinatrice

  • Claudia Ardizzon
    Collaboratrice
Via Manzoni, 29 20010 Bareggio (MI)
Zona: Bareggio
Mostra su mappa
Affiliato
Elide Srl
Via Manzoni, 29 20010 Bareggio (MI)

2026 Tecnocasa Franchising S.p.A. - P. IVA 08365160152 - Via Monte Bianco 60/A 20089 Rozzano (MI). Ogni agenzia ha un proprio titolare ed è autonoma. Privacy policy | Policy utilizzo | Cookie policy