Villa singola in vendita

Bareggio, Via Campo Sportivo
€ 195.000
2 locali 2 locali
80 Mq 80 Mq
1 bagno 1 bagno

Villa singola in vendita

Bareggio, Via Campo Sportivo

Descrizione annuncio

BAREGGIO:

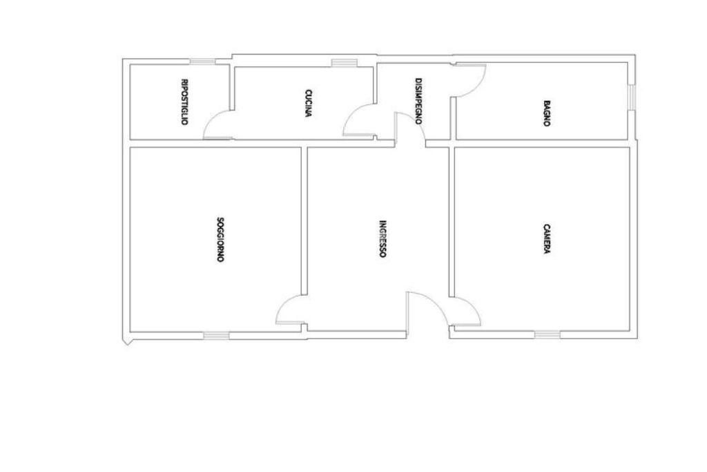
La soluzione proposta è una villa singola e si sviluppa su un unico livello abitativo.

La composizione interna prevede un ampio ingresso che ci conduce al soggiorno, poi segue la cucina con ripostiglio, la camera da letto ed il bagno con doccia.

Il giardino privato, di circa 250 mq, è ideale da sfruttare durante le belle stagioni per mangiare all’aperto e creare un’area relax.

Completa il tutto il box ampio con accesso alla cantina.

Per quanto riguarda la zona è piacevole siamo infatti a pochi passi dalla piazza del paese, in una via privata e tranquilla, è ben posizionata rispetto a tutti i servizi come i negozi, le scuole, la farmacia, il bar e le fermate dei mezzi pubblici che conducono a Milano.

L’abitazione è libera subito.

Per appuntamenti i nostri incaricati sono disponibili dal lunedì al venerdì dalle ore 9.30 alle 12.30 e dalle 14.30 alle 20.00 e il sabato dalle 9.30 alle 12.30 e dalle 14.30 alle 18.00. A vostra disposizione uno staff di consulenza creditizia in grado di proporvi il mutuo o il finanziamento più adatto alle vostre possibilità. Contattateci per fissare un incontro gratuito nei nostri uffici. Ogni agenzia ha un proprio titolare ed è autonoma.

Mostra tutto

Nelle vicinanze

Trasporto pubblico Trasporto pubblico
Via Roma - Corso Italia (Bareggio)
Via Roma - Corso Italia (Bareggio)
250 m
Via Gallina (Bareggio)
Via Gallina (Bareggio)
560 m
Ricariche auto elettriche Ricariche auto elettriche
Cornaredo Vittorio Veneto | EnelX
1,9 Km
Eneldrive McDonald's Sedriano
2,1 Km
Lidl Cornaredo
2,5 Km
Cornaredo Colombo | EnelX
2,7 Km
Centro Sportivo Comunale "S.Pertini" | EnelX
2,7 Km
Scuole Scuole
Scuola elementare istituto Luigi Perlasca
120 m
Scuole
1,6 Km
Scuola Media Ludovico Muratori
2,8 Km
Farmacia Farmacia
Farmacia Caiezza
260 m
Farmacia europea
410 m
Farmacia San Martino
1,4 Km
Farmacia
2,0 Km
Comunale
2,1 Km
Supermercati Supermercati
Carrefour Market
680 m
Penny Market
960 m
COOP
1,1 Km
Euro Spin
1,1 Km
Sigma
1,2 Km
Negozi Negozi
Negozi
1,1 Km
Nove Mesi
1,2 Km
Panipast
1,2 Km
Mauro il Fornaio
1,2 Km
OVS
1,5 Km
Bar Bar
Locanda rose wather
170 m
ChocoLù Bar
800 m
La Piazzetta
1,0 Km
El Merendero
1,9 Km
Garden Bar
2,5 Km
Ristoranti Ristoranti
pinseria
320 m
Ristorante Lampedusa
480 m
Rainbow
860 m
La Padellaccia
1,0 Km
Ristoranti
1,2 Km
Mostra tutto

Caratteristiche

Rif.:
61145036
Piano:
Basso di 1
Totale piani:
1
Box:
1
Posti auto:
1
Camere da letto:
1
Mostra tutto
Prezzo Prezzo
€ 195.000
Rata mutuo Rata mutuo
€ 899 / mese
Spese annue Spese annue
€ 0
Proponi il tuo prezzoProponi il tuo prezzo

Classe Energetica

F
F
F
F
F
F
F
F
F
EP globale non rinnovabile:
175.00 kW h/m² anno
EP invernale del fabbricato:
EP estiva del fabbricato:
Anno di costruzione:
1960
Riscaldamento:
Autonomo
Tipo impianto:
A radiatori
Tipo alimentazione:
Altro

Ti interessa visionare l'immobile?

Fissa un appuntamento  Fissa un appuntamento

Richiedi informazioni

* Questi campi sono obbligatori

Calcola il tuo mutuo

Semplice e senza impegno
Anticipo

( % )
Mutuo

( % )

pochi semplici passi

inserisci i tuoi dati
Questionario completato
Grazie per aver richiesto un appuntamento senza impegno con un nostro Consulente del Credito e Assicurativo.

Hai inserito correttamente tutti i dati necessari e a breve riceverai una e-mail con un link da convalidare per inviare i tuoi dati.
Affiliato
Elide Srl
Via Manzoni, 29 20010 Bareggio (MI)

Il nostro staff


  • Michele Cunzolo
    Affiliato

  • Rosa Anna Liotta
    Coordinatrice

  • Claudia Ardizzon
    Collaboratrice
Via Manzoni, 29 20010 Bareggio (MI)
Zona: Bareggio
Mostra su mappa
Affiliato
Elide Srl
Via Manzoni, 29 20010 Bareggio (MI)

2025 Tecnocasa Franchising S.p.A. - P. IVA 08365160152 - Via Monte Bianco 60/A 20089 Rozzano (MI). Ogni agenzia ha un proprio titolare ed è autonoma. Privacy policy | Policy utilizzo | Cookie policy